外墻掛板施工工藝
基層處理→施工準備→定位彈線→安裝起始條→安裝陽角柱→安裝陰角柱→安裝J型槽→鋪裝掛板→收頭處理
1、基層處理
本工程外墻為外保溫,保溫材料為單面插絲鋼板網,外墻抹灰前,先將其表面清理干凈,然后用1:1水泥砂漿內滲10%的108膠甩毛,要求甩毛顆粒均勻一致,干硬后灑水養護,然后分層抹壓1:2.5水泥砂漿至20妹妹厚,抹灰層應做到橫平豎直。陰陽角方正,干硬后灑水養護7天,過養護期后在進行外墻掛板的安裝。
2、施工準備
施工前一天將各種主輔材備齊,掛板、陰角柱、陽角柱、起始條、收口條、J型槽及塑料膨脹管、螺釘等材料。
準備號施工工具,連接好施工用電線路。
檢查作業面腳手架是否符合施工要求。
檢查作業面抹灰層的質量是否符合掛板安裝要求。
3、定位彈線
安裝掛板前,必須在墻面彈好橫縱分割線作為掛板安裝的依據。
1)根據外墻水平控制線確定起始條的定位線,并確保起始線是水平的。
2)以起始線為依據,根據掛板規格及膨脹螺釘固定間距彈出橫縱分割線,并作為膨脹螺釘固定的依據。
3)在陰陽角處根據陰陽角的規格彈出陰陽角柱定位邊線,要求垂直。
4、起始條的安裝
1)起始條安裝時,其下邊緣與起始定位線必須重合。
2)起始條與陰陽角柱之間必須留75妹妹的間距,起始條之間保持10mm的間距,防止膨脹所引起的變形。
3)起始條膨脹管固定間距為1000mm,膨脹管釘身長度不小于120mm,以保證固定在結構墻體內,然后,每200mm安裝一個40mm長的固定螺釘,將起始條固定抹灰層上。
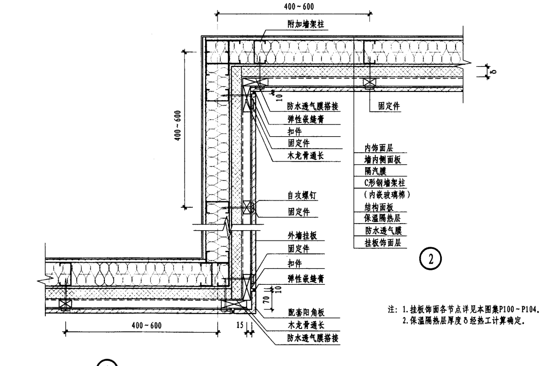
5、陰陽角柱的安裝
1)陽角柱安裝時,與頂部保持6mm間距。
2)在最上面的釘槽頂部固定120mm長的螺釘,每個200mm安裝一個40mm長的螺釘,間隔1000mm安裝120mm長的膨脹管螺釘。
3)沿著陽角柱高度方向,每隔400mm增加一個厚1mm,邊長180mm的直角鋼板固定件,加固陽角柱與結構墻的連接。
4)陰角柱的安裝同陽角柱一樣,但不需要安裝加固件,每1000mm安裝一個120mm長的膨脹管螺釘即可。
5)當角柱進行搭接連接時,上面的角柱應搭接在下面的角柱上,并將下面的角柱邊緣剪去25mm。
6、J型槽的安裝
1)窗臺下部J型槽的安裝:切一段J型槽,下料尺寸=窗寬+2倍J型槽的寬度,將J型槽的上面兩端等于J型槽寬度部分切除,根據掛板切割的位置,適當在J型槽下安裝墊片,使J型槽與掛板表面齊平。
2)窗洞兩側J型槽的安裝:切二段J型槽,長度=窗高+2倍J型槽的寬度,將J型槽長與窗高的上下兩端邊剪開,將上面一部分切除,下面正面剪成45°,側邊折入底邊的J型槽內。
3)窗口頂部J型槽的安裝:切一段J型槽,長度=窗高+2倍J型槽的寬,將J型槽的兩端邊剪開,將正面剪成45°,側邊下彎折入側邊的J型槽內,安裝好頂部J型槽。
4)在窗下邊J型槽內安裝收口條,以便將外墻掛板切割后的邊端嵌在里面。
5)對于圓弧窗。J型槽安裝時應事先加熱并彎成同窗一樣的弧度。
6)門洞,陽臺板,空調板周圍J型槽的安裝同窗戶。
7)安裝山墻頂部的J型槽時,其交匯處應切成45°角,其下適當墊加墊片,使J型槽與掛板表面平齊。
7、掛板的安裝
1)掛板的安裝由上向下逐塊進行,將第一層掛板安裝在起始條上,咬合緊密。
2)在釘槽中間安裝螺釘,將外墻掛板固定,螺釘安裝方法與起始條螺釘安裝一致。
3)在外墻掛板板端與角柱及門窗邊緣J型槽之間預留6mm距離。
4)板端搭接時,搭接長度為預制槽的一半,搭接時注意常年風向。
5)每層掛板搭接部位最少互相錯開1米,安裝完4-5層后,及時檢查掛板是否與屋檐、窗戶保持平行,是否與其他墻體上的掛板在同一水平面。
6)當外墻掛板固定好以后,不要用力向上或向下推它。
8、收頭處理
掛板的頂部收頭有兩種方式:屋檐水平方向和山墻邊端。
1)檐墻上掛板的安裝:根據最后的外墻掛板剩余量來切割掛板,將切割好的掛板伸到收口條內固定好即可。
2)山墻邊端掛板的安裝:根據山尖的形狀切外墻掛板,并將它安裝到J型槽內,考慮到板的膨脹應至少預留6mm的凈距。
9、腰線節點大樣:

10、安裝時的注意事項
1)除豎向構件的最上面一個螺釘應位于釘槽的頂端外,其余螺釘均釘在釘槽的中間。
2)螺釘不要擰得太緊,應考慮到掛板的熱脹冷縮,釘帽與掛板之間留0.8mm的間距,當掛板被固定后,用手按住掛板,應該能左右移動。
3)螺釘不能直接釘在掛板面上,如果沒有釘槽,應用沖孔器做一個。
4)螺釘應垂直釘入,不能使螺釘彎曲,否則會限制掛板左右移動,如果釘得偏上或偏下,掛板可能會被偏離校準直線。
5)每安裝完一片掛板,應檢查掛板下邊是否與下一層掛板扣牢,且不要太松或太緊。
6)掛板兩端必須釘螺釘,在基本風壓較大地區,螺釘應適當加密。

